Listing provided courtesy of Sana Saleh of Rodeo Realty. Last updated 2025-10-27 08:19:47.000000. Listing information © 2025 Sandicor.
Asking Price: $1,998,888 |
732 Crescent Heights, West Hollywood CA 90046
Community: C10 - West Hollywood Vicinity
This Single Family Residence property was built in 1925 and is priced at $1,998,888. Please see the additional details below.
Welcome to 732 & 734 N. Crescent Heights Blvd, a fully permitted, updated, and beautifully maintained duplex in one of Los Angeles’ most desirable neighborhoods — Beverly Grove / Beverly Hills Adjacent. With a Walk Score of 92, you’re just steps away from premier dining, shopping, and entertainment along Melrose Ave, The Grove, and Beverly Center.
The front residence (732 N. Crescent Heights) showcases timeless charm and modern upgrades throughout its 3 bedrooms and 2 baths. The chef’s kitchen features high-end Viking appliances, fresh interior paint, and hardwood floors that flow seamlessly through the light-filled living and dining areas. Enjoy the convenience of private laundry, a gated yard, and a long driveway leading to a three-car garage with ample parking.
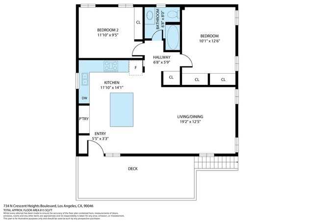
The rear residence (734 N. Crescent Heights) offers exceptional flexibility with 2 bedrooms, 1 bath, its own laundry room, and a freshly painted interior — ideal for rental income, extended family, or a private home office setup.
This rare offering delivers the perfect combination of location, versatility, and investment potential — whether you’re an owner-user seeking supplemental income or an investor looking for a strong long-term asset.


































